Skip to Main Content
Logo

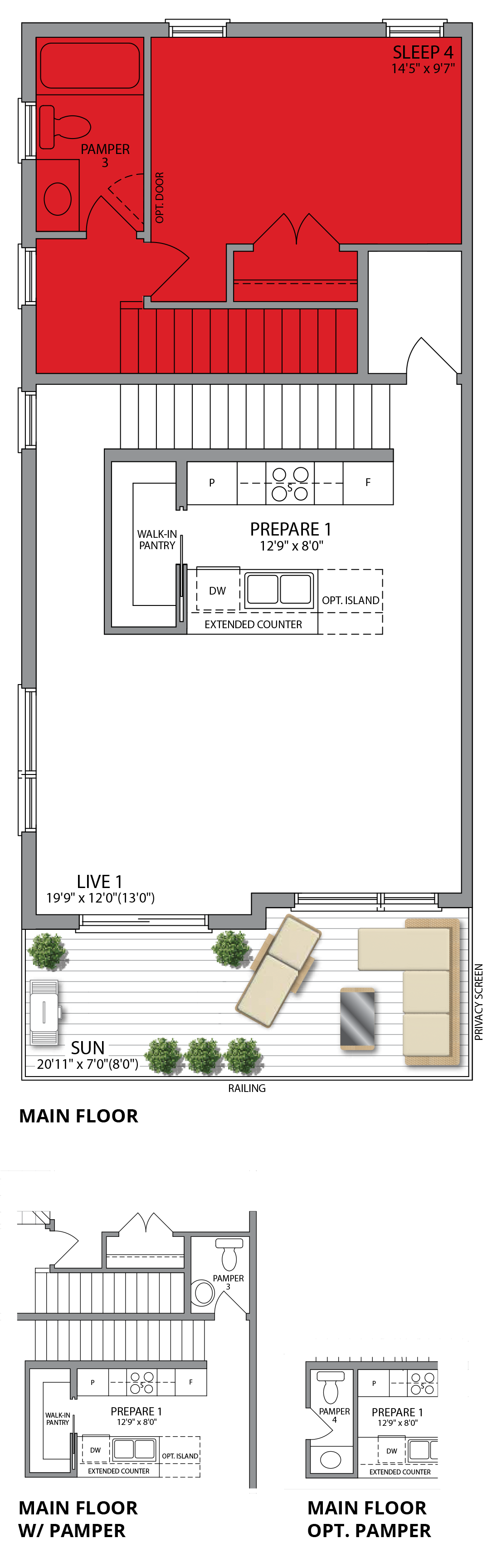
TOWNHOMES - LEGAL APARTMENTS 637 SQ.FT.

spray.

2,120 SQ.FT.


4 Bed


3 Bath + opt.pamper


2 Car garage

*Size based on end or internal unit condition.

GROUND FLOOR

spray. Ground Floor

MAIN FLOOR

spray. Main Floor

UPPER FLOOR

spray. Third Floor
spray. Other

All areas and stated room dimensions are approximate. Furniture is not included. Sizes and specifications are subject to change without notice. Actual usable floor area may vary from stated floor area. End wall windows shown for end unit condition only. Windows on side walls are shown for end unit condition only, and are not representative for internal unit condition. All renderings and home sitings are artist's impressions. E. & O. E.